
東急池上線「戸越銀座」駅徒歩3分。
都営浅草線「戸越」駅徒歩3分。

アピチェ戸越銀座


お部屋のプラン
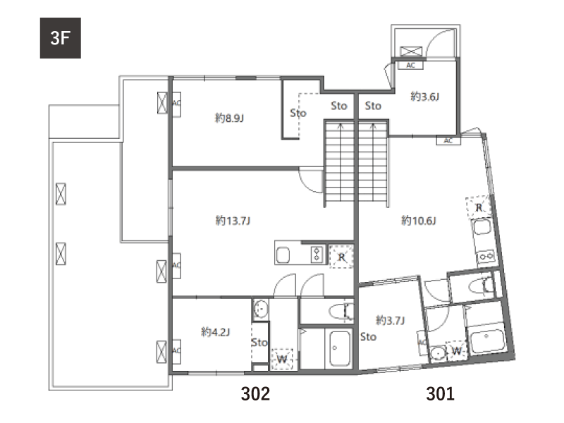
| 3F | 301 2LDK/41.08㎡ | 302 2LDK/64.72㎡ | |
|---|---|---|---|
| 2F | 201 1LDK/37.74㎡ | 202 1LDK/48.90㎡ | 203 1LDK/32.73㎡ |
| 1F | 101 1LDK/33.77㎡ | 102 1LDK/39.53㎡ ※SOHO | 103 1LDK/38.90㎡ |

物件概要
| 物件名称 | アピチェ戸越銀座 |
|---|---|
| 所在地 | 東京都品川区平塚一丁目6番4号 |
| 交 通 | 東急池上線「戸越銀座」駅徒歩3分 都営浅草線「戸越」駅徒歩3分 |
| 構 造 | 鉄筋コンクリート造地上3階 |
| 総戸数 | 8戸 |
| 専有面積 | 32.73㎡~64.72㎡ |
| 間取り | 1LDK、2LDK |
| 竣 工 | 2024年11月末日 |
| 入居可能日 | 即日 |
| 礼 金 | 0ヶ月 |
| 敷 金 | 0ヶ月 |
| 共益費 | 12,000円 |
| 解約予告 | 2ヶ月前 |
| 更新料 | 新賃料の1.5ヶ月分 |
| 鍵交換代 | お問い合せ下さい(新築時は無し) |
| 備考 |
火災保険:18,000円(2年) 保証会社:※エポス ルームIDからの審査になります。 【ルームID】月額総賃料の70%月次保証料、月額総賃料の1.5%/1年毎10,000円 【ナップ】月額総賃料の50%/年間保証料10,000円/引落手数料550円(税込) プレミアデスク:16,500円(税込/2年)※登録料4,400円を含みます。 短期解約違約金:1年未満2ヶ月 必要書類:■審査時 顔写真付き身分証・在籍証明 ■契約時 無し ※本物件は電子契約となります。 ※102号室のみ、SOHOとなります。 ※図面と現状に相違がある場合は現状を優先とします。 |
|---|

交通案内(※現地周辺)

設備概要
集合ポスト
宅配ボックス
TVモニタ付インターホン
シューズボックス
都市ガス
クローゼット
温水洗浄便座
エアコン
室内洗濯機置場
独立洗面台
ガスコンロ2口 ※102のみIH・レンジフードなし
浴室乾燥機
追焚き
敷地内ゴミ置場
無料インターネット
プロジェクター ※残置物扱いになります
VR
外観・エントランス(※イメージ)
101
102 ※SOHO
103
202
203
301
302